|
|
|
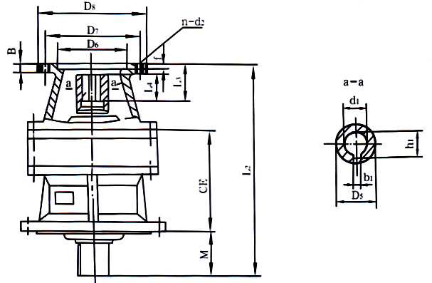
(一)電動機接盤型立式減速機安裝尺寸(IEC,Y,YA,YB,YEJ)
|
|
機型號
|
電動機功率
(KW)
|
電動機
機座號
|
D5
|
d1
|
公差
|
b1
|
h1
|
L4
|
D6
|
公差
|
D7
|
D8
|
f
|
B
|
n
|
d2
|
L3
|
M
|
CE
|
L2
|
|
1
|
0.25
0.37
|
71
|
37
|
14
|
F7
|
5
|
16.3
|
16
|
110
|
H8
|
130
|
160
|
4
|
12
|
4
|
10
|
30
|
48
|
123
|
241
|
0.55
0.75
|
801
802
|
37
|
19
|
6
|
21.8
|
27
|
130
|
165
|
200
|
4
|
12
|
4
|
12
|
40
|
48
|
123
|
248
|
|
2
|
0.37
|
71
|
37
|
14
|
5
|
16.3
|
20
|
110
|
130
|
160
|
4
|
12
|
4
|
10
|
30
|
42
|
127
|
239
|
0.55
0.75
|
801
802
|
37
|
19
|
6
|
21.8
|
25
|
130
|
165
|
200
|
4
|
12
|
4
|
12
|
40
|
42
|
127
|
246
|
|
3
|
0.37
|
71
|
37
|
14
|
5
|
16.5
|
20
|
110
|
130
|
160
|
4
|
12
|
4
|
10
|
29
|
50
|
158
|
280
|
0.55
0.75
|
801
802
|
37
|
19
|
6
|
21.8
|
28
|
130
|
165
|
200
|
4
|
15
|
4
|
12
|
40
|
50
|
158
|
296
|
1.1
1.5
|
90S
90L
|
47
|
24
|
8
|
27.3
|
33
|
130
|
165
|
200
|
4
|
15
|
4
|
12
|
50
|
50
|
158
|
303
|
|
2.2
|
100L
|
55
|
28
|
8
|
31.3
|
41
|
180
|
215
|
250
|
5
|
15
|
4
|
15
|
59
|
50
|
158
|
308
|
|
4
|
0.75
|
802
|
37
|
19
|
6
|
21.8
|
25
|
130
|
165
|
200
|
4
|
15
|
4
|
12
|
40
|
79
|
176
|
343
|
1.1
1.5
|
90S
90L
|
47
|
24
|
8
|
27.3
|
32
|
130
|
165
|
200
|
4
|
15
|
4
|
12
|
49
|
79
|
176
|
350
|
2.2 3
4
|
100L
112M
|
55
|
28
|
8
|
31.3
|
41
|
180
|
215
|
250
|
5
|
17
|
4
|
15
|
60
|
79
|
176
|
367
|
|
5.5
|
132S
|
65
|
38
|
10
|
41.3
|
57
|
230
|
265
|
300
|
5
|
17
|
4
|
15
|
80
|
79
|
176
|
396
|
|
5
|
1.5
|
90L
|
47
|
24
|
8
|
27.3
|
33
|
130
|
165
|
200
|
4
|
16
|
4
|
12
|
50
|
92
|
233
|
426
|
2.2 3
4
|
100L
112M
|
55
|
28
|
8
|
31.3
|
41
|
180
|
215
|
250
|
5
|
17
|
4
|
15
|
60
|
92
|
233
|
422
|
5.5
7.5
|
132S
132L
|
65
|
38
|
10
|
41.3
|
56
|
230
|
265
|
300
|
5
|
17
|
4
|
15
|
79
|
92
|
233
|
465
|
11
15
|
160M
160L
|
75
|
42
|
12
|
45.3
|
83
|
250
|
G8
|
300
|
350
|
6
|
20
|
4
|
19
|
110
|
92
|
233
|
495
|
|
6
|
2.2 3
4
|
100L
112M
|
55
|
28
|
8
|
31.3
|
41
|
180
|
G8
G8
|
215
|
250
|
5
|
18
|
4
|
15
|
59
|
92
|
276
|
481
|
5.5
7.5
|
132S
132L
|
65
|
38
|
10
|
41.3
|
57
|
230
|
265
|
300
|
6
|
18
|
4
|
15
|
80
|
92
|
276
|
510
|
11
15
|
160M
160L
|
75
|
42
|
12
|
45.3
|
81
|
250
|
300
|
250
|
5
|
20
|
4
|
19
|
110
|
92
|
276
|
547
|
|
7
|
4
|
112M
|
55
|
28
|
8
|
31.3
|
41
|
180
|
H8
|
215
|
250
|
5
|
17
|
4
|
15
|
59
|
114
|
193
|
527
|
5.5
7.5
|
132S
132M
|
65
|
38
|
10
|
41.3
|
57
|
230
|
265
|
300
|
5
|
18
|
4
|
15
|
78
|
114
|
293
|
550
|
11
15
|
160M
160L
|
75
|
42
|
12
|
45.3
|
81
|
250
|
G8
|
300
|
350
|
6
|
20
|
4
|
19
|
110
|
114
|
293
|
592
|
|
8
|
7.5
|
132M
|
65
|
38
|
10
|
41.3
|
57
|
230
|
H8
|
265
|
300
|
5
|
18
|
4
|
15
|
80
|
112
|
353
|
607
|
11
15
|
160M
160L
|
80
|
42
|
12
|
45.3
|
81
|
250
|
G8
|
300
|
350
|
6
|
22
|
4
|
19
|
109
|
112
|
353
|
658
|
|
18.5
|
200L
|
105
|
55
|
E7
|
16
|
59.3
|
80
|
300
|
350
|
400
|
6
|
25
|
4
|
19
|
110
|
112
|
353
|
647
|
|
9
|
11
15
|
160M
160L
|
80
|
42
|
F7
|
12
|
45.3
|
80
|
250
|
300
|
350
|
6
|
25
|
4
|
19
|
108
|
170
|
400
|
757
|
|
10
|
22
|
200L
|
105
|
55
|
E7
|
16
|
59.3
|
80
|
300
|
350
|
400
|
6
|
28
|
4
|
19
|
109
|
174
|
461
|
835
|
|
11
|
22
|
200L
|
105
|
55
|
16
|
59.3
|
80
|
300
|
350
|
400
|
6
|
30
|
4
|
19
|
109
|
210
|
628
|
1094
|
|
(二)電動機接盤型立式減速機外形安裝尺寸(配NEM A電動機)
|
|
機座號
|
電動機功率
(Hp)
|
電動機
機型號
|
D5
|
d1
(F7)
|
b1
|
h1
|
L4
|
D6
(H8)
|
D7
|
D8
|
f
|
B
|
n
|
d2
|
L3
|
M
|
CE
|
L2
|
|
1
|
1/3,1/2,3/4
|
56
|
37
|
15.87
(5/8)
|
4.76
(3/16)
|
18.2
|
36
|
114.3
(4-1/2)
|
149.22
(5-7/8)
|
165
(6-1/2)
|
4
|
13
|
4
|
11
|
52
|
48
|
123
|
271
|
|
1
|
143T
|
47
|
22.22
(7/8)
|
4.76
(3/16)
|
24.5
|
54
|
|
2
|
1/2,3/4
|
56
|
37
|
15.87
(5/8)
|
4.76
(3/16)
|
18.2
|
36
|
114.3
(4-1/2)
|
149.22
(5-7/8)
|
165
(6-1/2)
|
4
|
13
|
4
|
11
|
52
|
42
|
127
|
264
|
|
1
|
143T
|
47
|
22.22
(7/8)
|
4.76
(3/16)
|
24.5
|
54
|
|
3
|
1/2,3/4
|
56
|
37
|
15.87
(5/8)
|
4.76
(3/16)
|
18.2
|
36
|
114.3
(4-1/2)
|
149.22
(5-7/8)
|
165
(6-1/2)
|
4
|
13
|
4
|
11
|
52
|
50
|
158
|
303
|
|
1
|
143T
|
47
|
22.22
(7/8)
|
4.76
(3/16)
|
24.5
|
54
|
|
1-1/2,2
|
145T
|
|
3
|
184
|
|
4
|
1
|
143T
|
47
|
22.22
(7/8)
|
4.76
(3/16)
|
24.5
|
36
|
114.3
(4-1/2)
|
149.22
(5-7/8)
|
165
(6-1/2)
|
4
|
13
|
4
|
11
|
54
|
79
|
176
|
360
|
|
1-1/2,2
|
145T
|
|
3
|
182T
|
55
|
28.57
(1-1/8)
|
6.35
(1/4)
|
31.7
|
36
|
215.9
(8-1/2)
|
184.15
(7-1/4)
|
229
(9)
|
5
|
18
|
4
|
14
|
72
|
395
|
|
5
|
184T
|
|
7-1/2
|
213T
|
65
|
34.92
(1-3/8)
|
7.94
(5/16)
|
38.8
|
52
|
85
|
|
5
|
2
|
145T
|
47
|
22.22
(7/8)
|
4.76
(3/16)
|
24.5
|
36
|
114.3
(4-1/2)
|
149.22
(5-7/8)
|
165
(6-1/2)
|
4
|
15
|
4
|
14
|
54
|
92
|
233
|
420
|
|
3
|
182T
|
55
|
28.57
(1-1/8)
|
6.35
(1/4)
|
31.7
|
36
|
215.9
(8-1/2)
|
184.15
(7-1/4)
|
229
(9)
|
5
|
18
|
4
|
14
|
72
|
450
|
|
5
|
184T
|
|
7-1/2
|
213T
|
65
|
34.92
(1-3/8)
|
7.94
(5/16)
|
38.8
|
52
|
215.9
(8-1/2)
|
184.15
(7-1/4)
|
229
(9)
|
5
|
18
|
4
|
14
|
85
|
465
|
|
10
|
215T
|
|
15
|
254T
|
75
|
41.27
(1-5/8)
|
9.52
(3/8)
|
45.6
|
71
|
215.9
(8-1/2)
|
184.15
(7-1/4)
|
254
(10)
|
5
|
22
|
4
|
14
|
101
|
485
|
|
20
|
256T
|
|
6
|
3
|
182T
|
55
|
28.57
(1-1/8)
|
6.35
(1/4)
|
31.7
|
36
|
215.9
(8-1/2)
|
184.15
(7-1/4)
|
229
(9)
|
5
|
18
|
4
|
14
|
72
|
92
|
276
|
513
|
|
5
|
184T
|
|
7-1/2
|
213T
|
65
|
34.92
(1-3/8)
|
7.94
(5/16)
|
38.8
|
52
|
85
|
|
10
|
215T
|
|
15
|
254T
|
75
|
41.27
(1-5/8)
|
9.52
(3/8)
|
45.6
|
71
|
215.9
(8-1/2)
|
184.15
(7-1/4)
|
254
(10)
|
5
|
22
|
4
|
14
|
101
|
528
|
|
20
|
256T
|
|
7
|
5
|
184T
|
55
|
28.57
(1-1/8)
|
6.35
(1/4)
|
31.7
|
36
|
215.9
(8-1/2)
|
184.15
(7-1/4)
|
229
(9)
|
5
|
20
|
4
|
14
|
72
|
114
|
293
|
560
|
|
7-1/2
|
213T
|
65
|
34.92
(1-3/8)
|
7.94
(5/16)
|
38.8
|
52
|
85
|
|
10
|
215T
|
|
15
|
254T
|
75
|
41.27
(1-5/8)
|
9.52
(3/8)
|
45.6
|
71
|
215.9
(8-1/2)
|
184.15
(7-1/4)
|
254
(10)
|
5
|
22
|
4
|
14
|
101
|
580
|
|
20
|
256T
|
|
8
|
10
|
215T
|
65
|
34.92
(1-3/8)
|
7.94
(5/16)
|
38.8
|
52
|
215.9
(8-1/2)
|
184.15
(7-1/4)
|
229
(9)
|
5
|
20
|
4
|
14
|
85
|
112
|
353
|
620
|
|
15
|
254T
|
75
|
41.27
(1-5/8)
|
9.52
(3/8)
|
45.6
|
71
|
215.9
(8-1/2)
|
184.15
(7-1/4)
|
254
(10)
|
5
|
22
|
4
|
14
|
101
|
640
|
|
20
|
256T
|
|
9
|
15
|
254T
|
75
|
41.27
(1-5/8)
|
9.52
(3/8)
|
45.6
|
71
|
215.9
(8-1/2)
|
184.15
(7-1/4)
|
254
(10)
|
5
|
22
|
4
|
14
|
101
|
170
|
400
|
750
|
|
20
|
256T
|
|
法蘭聯(lián)接型表示示例
|
|
|
|